Sorry, no posts matched your criteria.
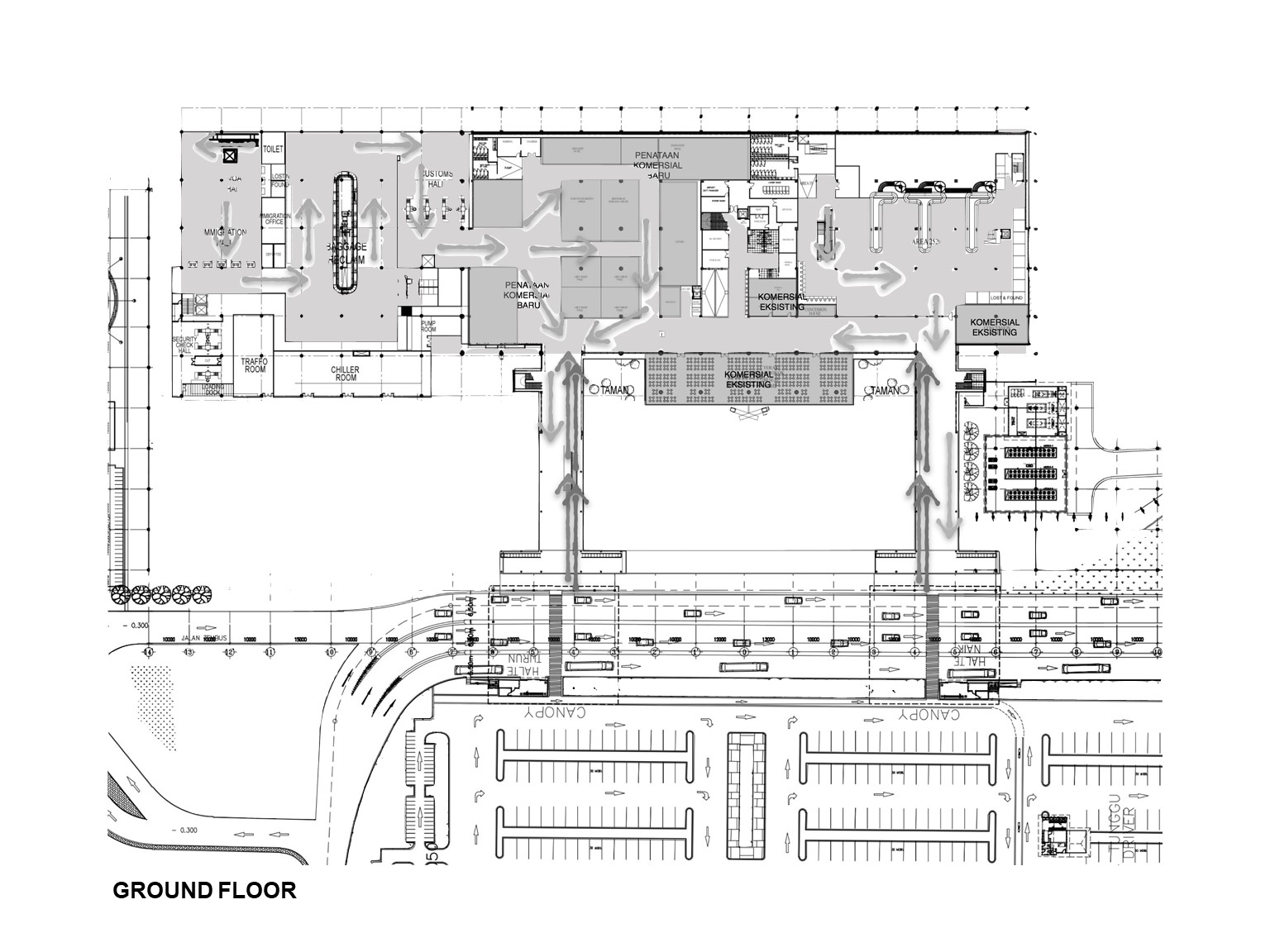
Pekanbaru, Indonesia
Detail Engineering Design
88.000 m2
2014
PT Angkasa Pura II